Este site utiliza cookies para permitir a mudança de língua e o armazenamento dos seus imóveis favoritos. Ao utilizar este site, concorda que o mesmo utilize cookies.

Terreno

150.000€




Referência

SRD285

Natureza

Venda

Tipo de Imóvel

Terreno

Tipologia

Não se aplica

Estado

Não se Aplica

Certificado energético

Não se aplica


Distrito

Leiria

Concelho

Bombarral

Freguesia

Carvalhal

Código Postal

2540


Área Útil

0 m2

Área Bruta

0 m2

Área de Terreno

905 m2



Contactar Imobiliária

*Preenchimento obrigatório
Ao clicar em 'Enviar', declara que aceita a nossa Política de Privacidade.
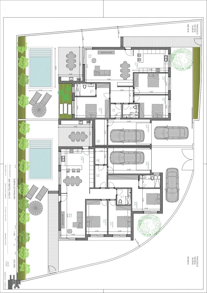
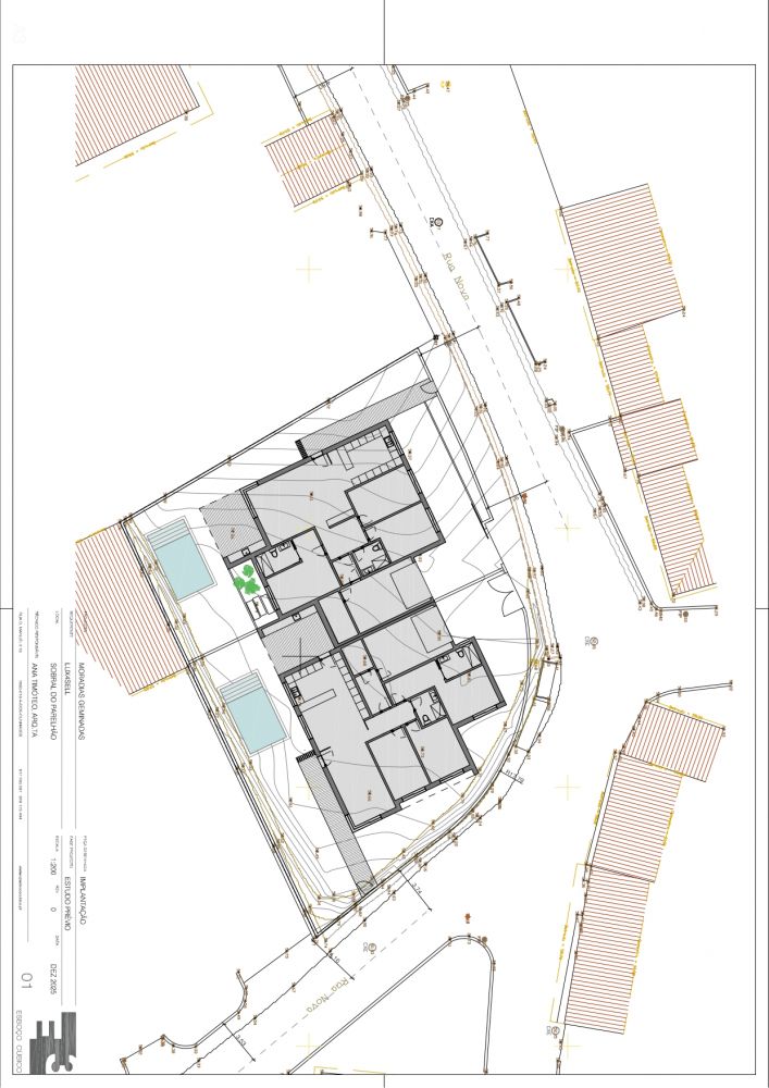
Terreno Urbano com 905m2, com possibilidade de construção de 2 Moradias, localizado em aldeia do Concelho do Bombarral.
Tem projeto aprovado para duas moradias com as seguintes características:

Moradia 1:
Terreno de 406,75m2
T3
Cozinha e sala em open space com uma área de 48,86m2.
Quarto com de 14,70m2; 
Quarto com 12m2: ambos com roupeiro embutido.
Suíte de 18,61m2 + 5.40m2 de casa de banho ( com janela).
Casa de banho  com 2.53m2
Garagem de 22,39m2.

Moradia 2:
Terreno de 430,90m2
T3
Cozinha e sala em open space com uma área de 51,79m2.
Quarto com 14,70m2; 
Quarto com 14,22m2 ambos com roupeiro embutido.
Suíte de 20,92m2 + 5.40m2 de casa de banho ( com janela).
Casa de banho com 4,61m2.
Garagem fechada de 22,39m2 e arrumos de 2.35m2.

Contém ainda projetada a construção de piscina, deck com zona de churrasqueira e jardins adjacentes.
Situada na zona Oeste,  a 20 minutos das praias de Peniche e Baleal. a 5 minutos do Jardim Budda Eden.
Possibilidade de ter uma moradia Térrea, com proximidade  do acesso da A8, e a 45 minutos de Lisboa.

Venha disfrutar do Oeste.
Marque a sua visita.
Geral
VistasCampo:Sim
VistasPastagens:Sim
VistasSerra:Sim
AcessosUrbano:Sim
Zona
CentralidadeRural:Sim
ProximidadeBancos:Sim
ProximidadeBombeiros:Sim
ProximidadeClínicas:Sim
ProximidadeEscolas:Sim
ProximidadeFarmácias:Sim
ProximidadeGinásios:Sim
ProximidadeJardins:Sim
ProximidadePadarias:Sim
ProximidadePolícia:Sim
ProximidadeServiços públicos:Sim
ProximidadeSupermercados:Sim
AcessosAlcatrão:Sim

Este imóvel não tem áreas definidas.

Imóveis
Semelhantes

Terreno
Venda

140.000€

Terreno

140.000€

Leiria / Bombarral / Carvalhal


Ref: SFF215

Ref: SFF215

Terreno
Venda

220.000€

Terreno

220.000€

Leiria / Bombarral / Bombarral e Vale Covo


Ref: SRD286

Ref: SRD286

Terreno
Venda

35.000€

Terreno com Ruína

35.000€

Leiria / Bombarral / Bombarral e Vale Covo


Ref: SPC08

Ref: SPC08

78 m2

Isento