Este site utiliza cookies para permitir a mudança de língua e o armazenamento dos seus imóveis favoritos. Ao utilizar este site, concorda que o mesmo utilize cookies.

Terreno

75.000€




Referência

SFF 271

Natureza

Venda

Tipo de Imóvel

Terreno

Subtipo de Imóvel

Terreno Urbano

Tipologia

Não se aplica

Estado

Não se Aplica

Certificado energético

Não se aplica


Distrito

Lisboa

Concelho

Lourinhã

Freguesia

Moita dos Ferreiros

Código Postal

2530


Área Útil

0 m2

Área Bruta

0 m2

Área de Terreno

3900 m2



Contactar Imobiliária

*Preenchimento obrigatório
Ao clicar em 'Enviar', declara que aceita a nossa Política de Privacidade.
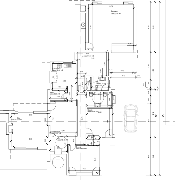
Terreno para construção com 3900 m2, com projeto aprovado para Moradia T3 Térrea com garagem, com as seguintes caraterísticas:
Cozinha com 12 m2 e despensa com 2 m2;
Sala de estar com 21 m2;
Sala de jantar com 14 m2;
Quarto 1 com 11 m2;
Quarto 2 com 14 m2;
Suíte com 14 m2 e Wc com 4 m2;
Wc com 6 m2;
Garagem com 33 m2.
Localizado na Moita dos Ferreiros, próximo do acesso á A8 e aos centros urbanos do Bombarral, Óbidos, Caldas da Rainha e Lourinhã, no máximo a 30 minutos das praias da região Oeste, Baleal, Areia Branca, Foz do Arelho e São Martinho do Porto, a 70 kms de Lisboa.
Está aqui a sua oportunidade de construir a sua nova casa, com uma paisagem fantástica.
Venha conhecer. 
Geral
VistasCampo:Sim
VistasPanorâmicas:Sim
VistasSerra:Sim
Exposição SolarNascente:Sim
Exposição SolarNorte:Sim
Exposição SolarPoente:Sim
Exposição SolarSul:Sim
GeraisVinha:Sim
InfraestruturasConcluídas:Sim
AcessosAsfalto:Sim
AcessosTerra Batida:Sim
AcessosUrbano:Sim
Edificio
ÁguaCompanhia:Sim
Zona
GeraisAuto-Estrada:Sim
GeraisPerto de mar:Sim
GeraisTransportes públicos:Sim
CentralidadeRural:Sim
CentralidadeJunto à cidade:Sim
ProximidadeBancos:Sim
ProximidadeBombeiros:Sim
ProximidadeCentros comerciais:Sim
ProximidadeClínicas:Sim
ProximidadeEscolas:Sim
ProximidadeFarmácias:Sim
ProximidadeGinásios:Sim
ProximidadeHospitais:Sim
ProximidadeJardins:Sim
ProximidadeJardins de infância:Sim
ProximidadePadarias:Sim
ProximidadePolícia:Sim
ProximidadePraias:Sim
ProximidadeServiços públicos:Sim
ProximidadeSupermercados:Sim
AcessosAlcatrão:Sim
AcessosTerra Batida:Sim

Este imóvel não tem áreas definidas.

Imóveis
Semelhantes

Terreno
Venda
RESERVADO

Preço sob consulta

Terreno

Preço sob consulta

Lisboa / Lourinhã / Moita dos Ferreiros


Ref: SRD237

Ref: SRD237

3120 m2

Terreno
Venda

95.000€

Terreno Rústico

95.000€

Lisboa / Lourinhã / São Bartolomeu dos Galegos e Moledo


Ref: SSP86

Ref: SSP86

20440 m2

Terreno
Venda

90.000€

Terreno em Atalaia

90.000€

Lisboa / Lourinhã / Lourinhã e Atalaia


Ref: SSP132

Ref: SSP132