(Chamada para a rede móvel nacional)
86.500€
Referência
SFF245
Natureza
Venda
Tipo de Imóvel
Terreno
Subtipo de Imóvel
Terreno Urbano
Tipologia
Não se aplica
Estado
Não se Aplica
Certificado energético
A+
Distrito
Lisboa
Concelho
Torres Vedras
Freguesia
A dos Cunhados e Maceira
Código Postal
2560
Área Útil
0 m2
Área Bruta
0 m2
Área de Terreno
710 m2
Sigma Oeste
Rua 25 de Abril 2 1ºAndar , 2530-128, LisboaFilipe Ferreira
Consultor
919480981
(Chamada para a rede móvel nacional)
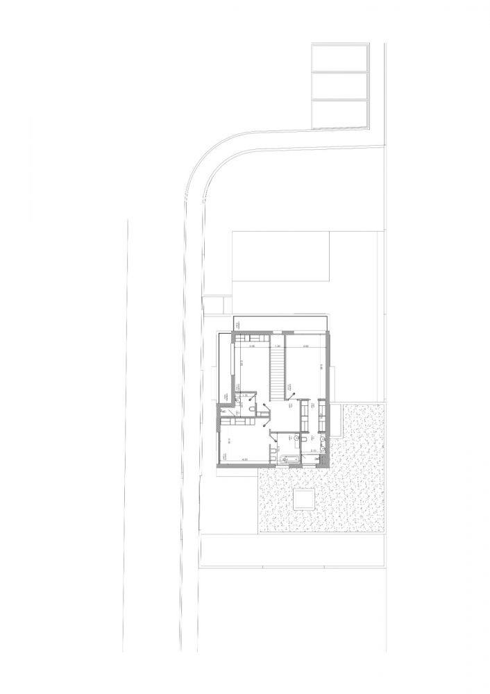
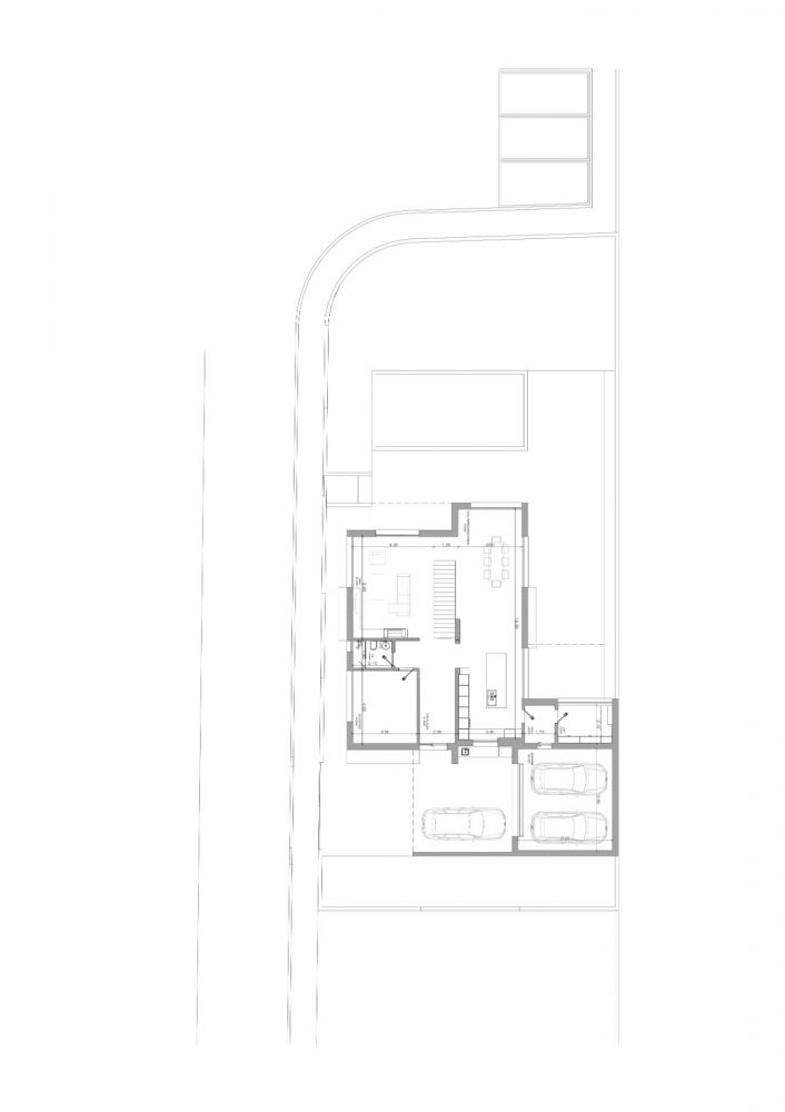
Terreno com licença a levantamento. Tem projeto de arquitetura aprovado para Moradia com dois pisos e piscina, T3+1, com as seguintes caraterísticas: No rés-do-chão temos : Sala de refeições/cozinha em open space com 44 m2; Sala de estar com 25 m2; Escritório com 14 m2; Wc de serviço com 3 m2; No espaço exterior temos uma piscina de 8,20 m por 4 m, com espaço exterior amplo onde pode aproveitar os dias de verão, uma lavandaria com 6,25 m2, uma garagem com 29,10 m2, com espaço para dois automóveis e mais um espaço para estacionamento exterior de outro automóvel. No primeiro piso temos três suítes com as seguintes caraterísticas: Uma delas com 19,75 m2 com closet de 5,90 m2, e casa de banho com 5,30 m2; A segunda suíte tem 17,40 m2 e casa de banho com 4,60 m2; A terceira suíte tem os mesmos 17,40 m2 e casa de banho com 6,90 m2; Há ainda duas varandas, uma com 10,80 m2 e outra com 6,80 m2. Junto ao campo e á natureza, mas perto da ligação á auto estrada e de todos os serviços essenciais ao seu dia-a-dia, encontra este terreno fantástico onde pode construir a sua casa de sonho, com conforto e qualidade superior. Fica localizado em A-dos-Cunhados, a 60 km de Lisboa, a 20 km de Torres Vedras, a 9 km da praia de Santa Cruz e a 7 km da praia de Santa Rita.
| Vistas | Campo: | Sim |
|---|---|---|
| Vistas | Cidade: | Sim |
| Vistas | Jardins: | Sim |
| Vistas | Panorâmicas: | Sim |
| Vistas | Serra: | Sim |
| Exposição Solar | Nascente: | Sim |
| Exposição Solar | Norte: | Sim |
| Exposição Solar | Poente: | Sim |
| Exposição Solar | Sul: | Sim |
| Acessos | Terra Batida: | Sim |
| Equipamento | Churrasqueira: | Sim |
|---|---|---|
| Equipamento | Jardins: | Sim |
| Gerais | Auto-Estrada: | Sim |
|---|---|---|
| Gerais | Comboio: | Sim |
| Gerais | Perto de mar: | Sim |
| Gerais | Perto de rio: | Sim |
| Gerais | Transportes públicos: | Sim |
| Centralidade | Centro da cidade: | Sim |
| Centralidade | Rural: | Sim |
| Proximidade | Bancos: | Sim |
| Proximidade | Bombeiros: | Sim |
| Proximidade | Centros comerciais: | Sim |
| Proximidade | Clínicas: | Sim |
| Proximidade | Escolas: | Sim |
| Proximidade | Farmácias: | Sim |
| Proximidade | Ginásios: | Sim |
| Proximidade | Hospitais: | Sim |
| Proximidade | Jardins: | Sim |
| Proximidade | Jardins de infância: | Sim |
| Proximidade | Padarias: | Sim |
| Proximidade | Polícia: | Sim |
| Proximidade | Praias: | Sim |
| Proximidade | Serviços públicos: | Sim |
| Proximidade | Supermercados: | Sim |
| Proximidade | Universidade: | Sim |
| Acessos | Alcatrão: | Sim |
| Acessos | Terra Batida: | Sim |
Este imóvel não tem áreas definidas.
Ref: SFF246
Preço sob consulta
Preço sob consulta
Lisboa / Torres Vedras / S.P., Santiago, S.M. Castelo e S.Miguel, Matacães
Ref: SRD181
Ref: SRD181